八零图社
首页
最新
热门
排行
首页
最新
热门
排行
自然风光
动漫卡通
美食摄影
科技数码
人物写真
创意设计
壁纸背景
游戏原画
首页
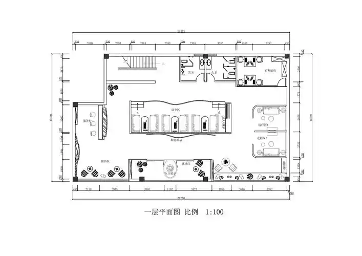
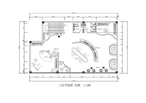
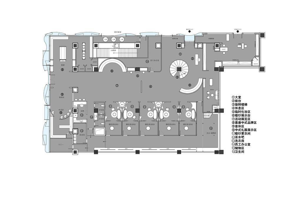
婚纱店平面图
图片详情
平面图项目信息——项目名称:wdresses婚纱礼服定制项目地址:云南省
0
浏览
0
喜欢
1000x706
尺寸
2026-03-12 19:09:46
上传
查看原图
下载图片
图片链接
缩略图
原图
外链
专题
婚纱店平面图
相关图片
婚纱定制店平面图
0
0
金夫人婚纱摄影店设计
0
0
环境设计专业之婚纱店设计基础
0
0
金夫人婚纱摄影店设计
0
0
婚纱店设计平面图:打造浪漫,优雅的购物体验_顾客_宣传_定位
0
0
影楼平面方案3262218
0
0
【已回复】婚纱店,还有没有更好的建议方案_平面研讨_室内设计联盟
0
0
爱巢婚纱摄影有限公司
0
0
爱诺婚纱摄影店cad建筑图纸婚纱店施工图下载
0
0
中国 邢台 齐兰婚纱礼服私享馆
0
0
西方独特婚纱专卖店设计施工图_附效果图
0
0
jemo新作珑御高级婚纱店设计打造专属爱情空间
0
0
随机推荐
春天这5种不花钱的野菜养肝降脂祛湿散寒千万别错过
0
0
美女手捧向日葵写真照手机壁纸
0
0
张云雷(张磊)生活照大曝光 张云雷在德云社为什么排行第二
0
0
爱自己-毓秀小楷体个性字体
0
0
一口气看完《古惑仔之战无不胜》 #经典港片 #影视解说 #古惑仔 #陈
0
0
本季短发女生推荐小脸短发发型
0
0
曾艾佳超话
0
0
精选男生动漫头像男神
0
0
分手后发朋友圈的句子霸气让对方看到心疼的句子
0
0
甜酷拽姐双麻花#编发教程 #女生必看 #发型 #编发 - 抖音
0
0
"不跳不是人!"这个看热闹不嫌事大的绝情大爷,你摊上大事了
0
0
中国古典美!古代女子发髻图解,有你喜欢的吗?
0
0