八零图社
首页
最新
热门
排行
首页
最新
热门
排行
自然风光
动漫卡通
美食摄影
科技数码
人物写真
创意设计
壁纸背景
游戏原画
首页
凯德mall
图片详情
(凯德集团运营的北京望京凯德mall购物中心.图片来自公司官网)
0
浏览
0
喜欢
640x427
尺寸
2026-03-13 01:44:48
上传
查看原图
下载图片
图片链接
缩略图
原图
外链
专题
凯德mall
相关图片
凯德mall·西直门 图片来源/凯德集团(中国)官网
0
0
凯德mall·新都心 / laguarda.low architects | 建筑学院
0
0
凯德mall大兴北京南城集趣生活目的地lla建筑设计公司
0
0
原凯德mall·天宫院更名凯德mall·大兴 打造集趣生活目的地_北京日报
0
0
凯德mall大兴北京南城集趣生活目的地lla建筑设计公司
0
0
凯德mall西直门
0
0
引入首店增加户外活动区望京凯德mall加快升级
0
0
凯德mall商场
0
0
凯德mall大兴北京南城集趣生活目的地lla建筑设计公司
0
0
凯德mall·新都心 / laguarda.low architects | 建筑学院
0
0
凯德mall(新都心店)
0
0
原凯德mall天宫院更名凯德mall大兴约13品牌更新入驻
0
0
随机推荐
原创明明有演技有颜值却红不起来的女明星心疼李沁
0
0
漫画丨月无双变身山寨夫人!卡卡暴走!
0
0
日产帕拉丁发动机ka24de正时链条拆装教程
0
0
加拿大自然美景唯美风光高清电脑桌面主题壁纸图片(二)
0
0
《信长之野望14创造》中的立花宗茂
0
0
斗牛接下来的四个星期,你终于会得到好运,未来会发财的_财富_双子座
0
0
对不起,没关系.
0
0
露天舞台(fayetteville festival park)-文化建筑案例-筑龙建筑设计
0
0
独一无二的微信头像
0
0
简约手绘喵咪插画手机壁纸_可爱卡通猫咪手机壁纸_三千图片网
0
0
求一套13人比较新颖的舞蹈队形图,篮球赛要用
0
0
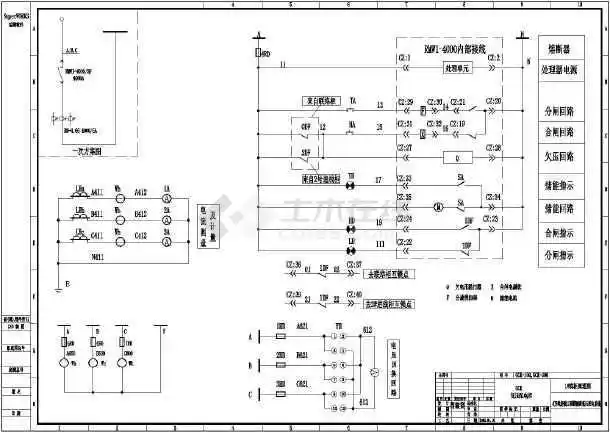
双进线与母联柜互锁原理接线图(含柜内端子排)
0
0