八零图社
首页
最新
热门
排行
首页
最新
热门
排行
自然风光
动漫卡通
美食摄影
科技数码
人物写真
创意设计
壁纸背景
游戏原画
首页
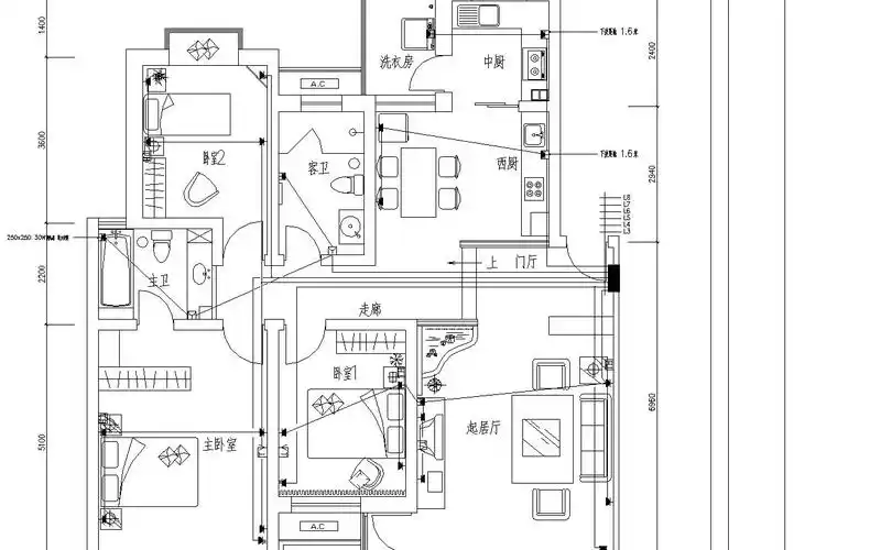
公寓装修电路图
图片详情
装修布线装修电力布线图
0
浏览
0
喜欢
1922x1331
尺寸
2026-03-12 15:18:19
上传
查看原图
下载图片
图片链接
缩略图
原图
外链
专题
公寓装修电路图
相关图片
装修装修房子时有哪些验收竣工标准
0
0
图1-6 四室两厅家庭电气装饰两厅线路
0
0
家里装修,自己设计的电路图,有没老师傅帮看下有没什么隐患?
0
0
一不小心要人命的 看看你家用对了吗
0
0
2013我的家装之路——常发广场(参赛2013) - 家庭装修 - 梦溪论坛
0
0
高分求装修电路图
0
0
家庭装修电路,一个房间一个回路好不好,如何设置回路比较好
0
0
装修电路一定注意!千万不能这样,一有漏电,全家没电!
0
0
设计一个家庭电路,要求客厅开关s1控制l1和l2;卧室开关s2控制壁灯,该
0
0
样板间装修电气施工图
0
0
图1-8 灯,开关平面图
0
0
装修设计之电路图
0
0
随机推荐
新龙门客栈
0
0
男生头像阳光帅气高清图片个性男生头像真人微信图片大全
0
0
轩辕录播弹丸论破v3demo体验版
0
0
2020年9月10日,安徽省合肥市蜀山区十里庙小学的小学生在用画笔描绘
0
0
艺术品
0
0
骆驼祥子手抄报
0
0
【王一博】我博哥这完美的侧脸
0
0
高清4k动漫美女壁纸图片_二次元美女壁纸图片_三千图片网
0
0
伤感文字唯美手机壁纸2018最新版本
0
0
世界上最贵的"娃娃"长什么样?外形很逼真,唯有土豪买得起
0
0
莲子雪耳海底椰图片
0
0
楠歌秋意阑珊现货宋制汉对襟百迭绣花蝴蝶蝴蝶花民族服装
0
0