八零图社
首页
最新
热门
排行
首页
最新
热门
排行
自然风光
动漫卡通
美食摄影
科技数码
人物写真
创意设计
壁纸背景
游戏原画
首页
卫生间平面图及尺寸
图片详情
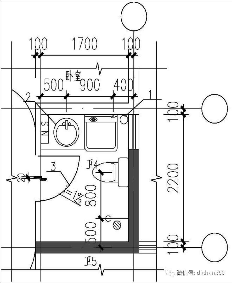
原卫生间平面图修改后卫生间平面图问题点:1,给水立管位置紧靠窗,既不
0
浏览
0
喜欢
969x1182
尺寸
2026-03-13 06:52:52
上传
查看原图
下载图片
图片链接
缩略图
原图
外链
专题
卫生间平面图及尺寸
相关图片
酒店式整体卫生间
0
0
住宅卫生间尺寸设计
0
0
作为设计师,最长被业主问到的就是卫生间,尺寸,以及其他方面的人体
0
0
卫生间布局图纸适合3㎡10㎡使用
0
0
方案图▲参考案例图卫生间里的尺寸问题:1,淋浴房舒适宽度:900mm;2
0
0
小面积卫生间,如何布置更好用?
0
0
集成卫浴整体卫生间
0
0
本工程为某小区房屋卫生间室内装修设计图,包含平面图,立面图,剖面图.
0
0
平面设计)#(卫生间尺寸)#(卫生间空间)#(洁具布置)#(公厕)#(公共卫生
0
0
修改后卫生间平面图问题点:1,无前室的卫生间门不应直接开向厨房
0
0
日本2㎡卫生间都能有浴缸马桶,我们为什么不可以?业主:看不上
0
0
卫生间的尺寸一般是多少合适
0
0
随机推荐
美丽的天空,晚霞,云海,发光 iphone 壁纸
0
0
游泳一次多长时间比较好?
0
0
00后小花23年发展前景赵今麦领跑刘浩存被抵制蒋依依潜质大
0
0
狗品种大全宠物狗品种大全
0
0
我的小腿歪了 最近跳绳发现小腿肚越来越大
0
0
最新q版可爱女12星座头像 女生头像图片大全 -【爱个性】
0
0
叶伟老师讲洗髓功渊源,脉系,乱象08丨千万别乱补身体,否则适得其反
0
0
暗黑系头像,黄粱一梦,倾厦而醒
0
0
一对蓝色翅膀2019届11班蓝色班旗设计图案
0
0
常用型钢规格表|圆钢|扁钢|工字钢|方钢|汽车_网易订阅
0
0
免抠元素|卡通军人兵哥哥人物形象 最美的兵哥哥人物卡通形象分享
0
0
抖音最火情侣头像
0
0