八零图社
首页
最新
热门
排行
首页
最新
热门
排行
自然风光
动漫卡通
美食摄影
科技数码
人物写真
创意设计
壁纸背景
游戏原画
首页
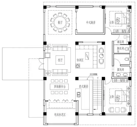
日式别墅设计图平面图
图片详情
占地18x17二层带车库日式自建别墅设计全套施工图 - 乡村住宅在线
0
浏览
0
喜欢
1500x1390
尺寸
2026-03-12 05:26:20
上传
查看原图
下载图片
图片链接
缩略图
原图
外链
专题
日式别墅设计图平面图
相关图片
日本经济型别墅平面图
0
0
最受欢迎的日本经济型别墅平面图设计
0
0
最高造价37万日式二层半别墅设计方案
0
0
最受欢迎的日本经济型别墅平面图设计
0
0
日本歌山县别墅平面图-日本歌山县别墅第22张图片
0
0
悦湖湾别墅设计
0
0
一层带阁楼,融合日式的现代风格别墅,9×10米,效果美极了
0
0
【月】bst独栋别墅方案设计
0
0
2017年01月竣工摄影小川重雄来源:新微设计声明图片素材来源网络,版权
0
0
中式二层别墅设计图平面图
0
0
玺上庭清爽日式别墅设计工程
0
0
日本京都市一户建别墅 自住 日式和风
0
0
随机推荐
未来可期的唯美图片,女人上进努力图片唯美
0
0
美人为馅顾然是谁怎么死的 美人为馅t和顾然是什么关系
0
0
纸上空间小红书爆款礼盒包装纸盒2片纸板折叠盒悬浮盒饰品收纳盒
0
0
皮裤的正确打开方式关晓彤剑灵新造型初露性感
0
0
怎么写博客 - javashuo
0
0
最近刚看完「纸醉金迷」,罗海琼和陈好可真美呀,.
0
0
食品包装 螺蛳粉|插画|商业插画|沐轩之 - 原创作品 - 站酷 (zcool)
0
0
【创作星激励】可以让我加入你的队伍吗‖纳西妲cos-原神社区-米游社
0
0
扇形古风边框免抠元素素材
0
0
抠图背景
0
0
透过大门,能看出家庭富足程度和精神追求.
0
0
成熟帅气男生头像图片 有气质(80后男生头像成熟帅气)-天晟网
0
0