八零图社
首页
最新
热门
排行
首页
最新
热门
排行
自然风光
动漫卡通
美食摄影
科技数码
人物写真
创意设计
壁纸背景
游戏原画
首页
喷淋图纸
图片详情
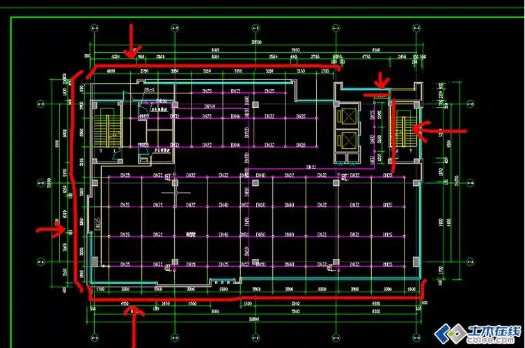
老师麻烦帮忙看一下,喷淋系统图里,红圈里的这两个图例是什么意思?
0
浏览
0
喜欢
1056x670
尺寸
2026-03-13 11:21:42
上传
查看原图
下载图片
图片链接
缩略图
原图
外链
专题
喷淋图纸
相关图片
地下室喷淋图纸
0
0
喷淋系统图
0
0
请教消防喷淋平面识图
0
0
【yigeqingchen学给排水】之自动喷淋系统设计流程
0
0
喷淋系统图示
0
0
请教消防喷淋图纸怎么看啊?哥哥叔叔们
0
0
喷淋系统图示
0
0
消防喷淋系统的系统图的量是怎么算的?求助!
0
0
自动喷淋系统
0
0
喷淋图集 - 热门商品专区
0
0
一层消防喷淋平面图
0
0
七,自动喷淋系统
0
0
随机推荐
店铺logo
0
0
言承旭周渝民吴建豪朱孝天
0
0
高清组图:短发黄奕代言尽显清纯范儿 水绿长裙秀美胸
0
0
中国最帅老大爷,纯纯的沈阳人!
0
0
马嘉祺新综艺录制
0
0
【图】付迪生任静无性婚姻是怎么回事 网曝任静患宫颈癌晚期
0
0
龙族动漫头像 系列二 《龙族》系列 —— 路明非动漫头像—路明非 路
0
0
可爱萌物手机壁纸壁纸少女心聊天背景图
0
0
撑起网络安全之伞
0
0
干眼患者的福音,安康市中心医院引进冶疗干眼新设备 - 美篇
0
0
点面结合手法.#多彩的活动点面结合#多彩的活动 #多彩的活动 - 抖音
0
0
立邦乳胶漆选定分享Ⅰ附选购攻略
0
0