八零图社
首页
最新
热门
排行
首页
最新
热门
排行
自然风光
动漫卡通
美食摄影
科技数码
人物写真
创意设计
壁纸背景
游戏原画
首页
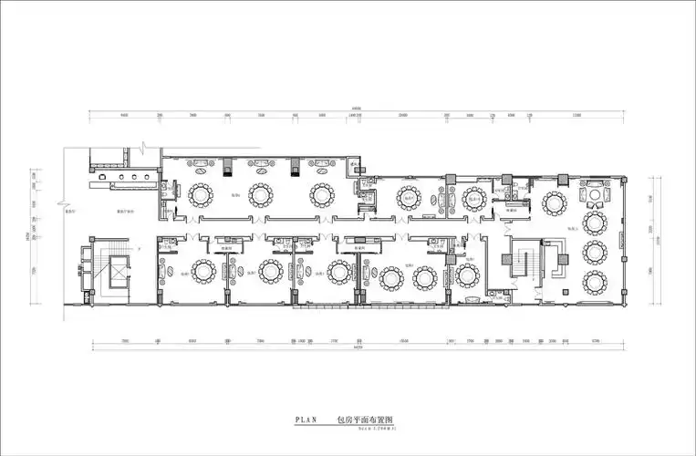
宴会厅布置平面图
图片详情
[施工图][湖南]某大酒店小宴会厅装修图
0
浏览
0
喜欢
560x433
尺寸
2026-03-13 07:34:34
上传
查看原图
下载图片
图片链接
缩略图
原图
外链
专题
宴会厅布置平面图
相关图片
宴会厅布置图.pptx
0
0
深圳瑞吉酒店宴会厅平面图
0
0
内容简介 某宴会厅装修图 包括 平面布置图 顶面布置图 各
0
0
私人宴会厅平面图 (由 visual paradigm online 的平面图软件制作)
0
0
宴会厅装修平面图
0
0
某酒店经典宴会厅室内装修图(14张) 包括:平面
0
0
武汉香格里拉酒店宴会厅平面图
0
0
(29张) 包括:1层(平面布置图,地面布置图,天花布置图,中空宴会厅
0
0
国际酒店多功能宴会厅装修图
0
0
如何合理化设计宴会厅的空间布局
0
0
[攀枝花]新中式别致酒店宴会厅设计平面图
0
0
2主题宴会活动地点与布局 (1)宴会厅的规格与选用 北京香格里拉酒店分
0
0
随机推荐
你是我的荣耀杨洋的高光演技时刻微表情处理得太到位了
0
0
新闻联播主播《郭志坚-旅行记忆》爱心摄影展
0
0
唱歌的小女生简笔画
0
0
颖儿的身高为一米七,体重是140斤,实际上这个身材可以说刚刚好,也许在
0
0
竖板211,八骏图
0
0
倩女幽魂手游壁纸:新职业蝶客原画造型
0
0
全日粮tmr饲料搅拌机tmr全日粮饲料搅拌机技术
0
0
如果你是这几类父母,恭喜你,养出来的孩子会很出色
0
0
学堂云3.
0
0
三人姐妹头像 闺蜜头像 三个人的友谊不会拥挤 只要足够爱 💙💜
0
0
韵母连线简笔画
0
0
二次元黑白动漫闺蜜头像一对
0
0